Affittasi Negozio con canna fumaria

location_on Via Fabrici Girolamo D'Acquapendente

affitto
€ 1.000 /mese

Descrizione

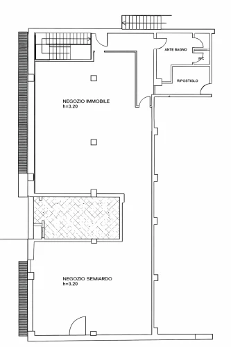
Padova_Affittasi Negozio di ca. 70 mq con doppio ingresso, servizio e canna fumaria. Situato in posizione strategica in via di forte passaggio con ottima visibilità. Impianti autonomi. Libero da subito.

 

Richiesti € 1000 NO IVA


Riferimento: NA 0032

Caratteristiche

Principale
arrows_output
Dimensione
70
calendar_check
Libero
SI
Caratteristiche
energy_savings_leaf
Ipe
139,43
bathtub
Bagni
1
mode_heat
Riscaldamento
Autonomo pompa di calore
calendar_view_day
Piano
Terra
dine_lamp
Arredamento
No
exit_to_app
Uscita emergenza
Si
e911_emergency
Luci di emergenza
Si
local_convenience_store
Vetrine su strada
1
cabin
Canna fumaria
SI

Classe energetica

F
> 2,60 e ≤ 3,50 kWh/m²

Mappa

Richiedi informazioni

Contattaci per avere più informazioni riguardo l'immobile

print STAMPA ANNUNCIO

Altri annunci simili