Vigodarzere - Vendesi Negozio con canna fumaria

location_on

Descrizione

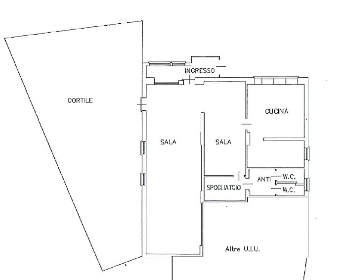
Vigodarzere_Affittasi ampio ufficio di rappresentanza in stabile di pregio situato al 10° piano servito da ascensore e così composto: ingresso, 10 vani ad uso ufficio/ archivio, cucina, 2 servizi, ripostiglio e ampio parcheggio comune.
Utenze autonome
Spese condominiali pari ad ca € 85/mensili 
Disponibile dal: 1 settembre 2026


Richiesti € 2500 + IVA


Info e visite contattando lo StudioRuzza.

La nostra azienda, con i suoi collaboratori, si pone con serietà e competenza sul mercato cittadino da oltre
quarant'anni occupandosi di intermediazione e consulenza rivolte ai settori: immobiliare residenziale, commerciale,
attività commerciali e pubblici esercizi.


Il nostro obiettivo è la soddisfazione del cliente, oggetto della nostra cura avrà a disposizione servizi e
competenze secondo i più alti standard qualitativi in ogni fase del rapporto e della trattativa.

Caratteristiche

Richiedi informazioni

Contattaci per avere più informazioni riguardo l'immobile

print STAMPA ANNUNCIO

Altri annunci simili