Vigodarzere - Vendesi Negozio con canna fumaria

location_on Via Roma

vendita
€ 120.000

Descrizione

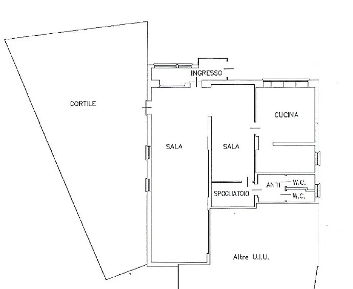
Vigodarzere_Vendesi negozio con canna fumaria situato al piano terra di ca. 140 mq situato in zona di forte
passaggio e così composto: salone, cucina, 2 servizi, ripostiglio, comodo parcheggio comune e giardino.
Utenze autonome
Spese condominiali pari ad € 50/mensili

Richiesti € 120.000

Info e visite contattando lo StudioRuzza.
Rif: NV 3026

La nostra azienda, con i suoi collaboratori, si pone con serietà e competenza sul mercato cittadino da oltre quarant'anni occupandosi di intermediazione e consulenza rivolte ai settori: immobiliare residenziale, commerciale, attività commerciali e pubblici esercizi.

Il nostro obiettivo è la soddisfazione del cliente, oggetto della nostra cura avrà a disposizione servizi e
competenze secondo i più alti standard qualitativi in ogni fase del rapporto e della trattativa.

Caratteristiche

Principale
arrows_output
Dimensione
140
euro
Spese condominiali
50 €/mese
calendar_check
Libero
Si
Caratteristiche
energy_savings_leaf
Ipe
283,64
bathtub
Bagni
2
mode_heat
Riscaldamento
Autonomo
laptop_car
Posti auto
Ampio Parcheggio Comune
calendar_view_day
Piano
Terra
height
Altezza soffitto
3 m
local_convenience_store
Vetrine su strada
3
cabin
Canna fumaria
Si

Classe energetica

F
> 2,60 e ≤ 3,50 kWh/m²

Mappa

Richiedi informazioni

Contattaci per avere più informazioni riguardo l'immobile

print STAMPA ANNUNCIO

Altri annunci simili