Ampio quadrilocale completamente ristrutturato con posto auto

location_on Via Del Santo

affitto
€ 2.500 /mese

Descrizione

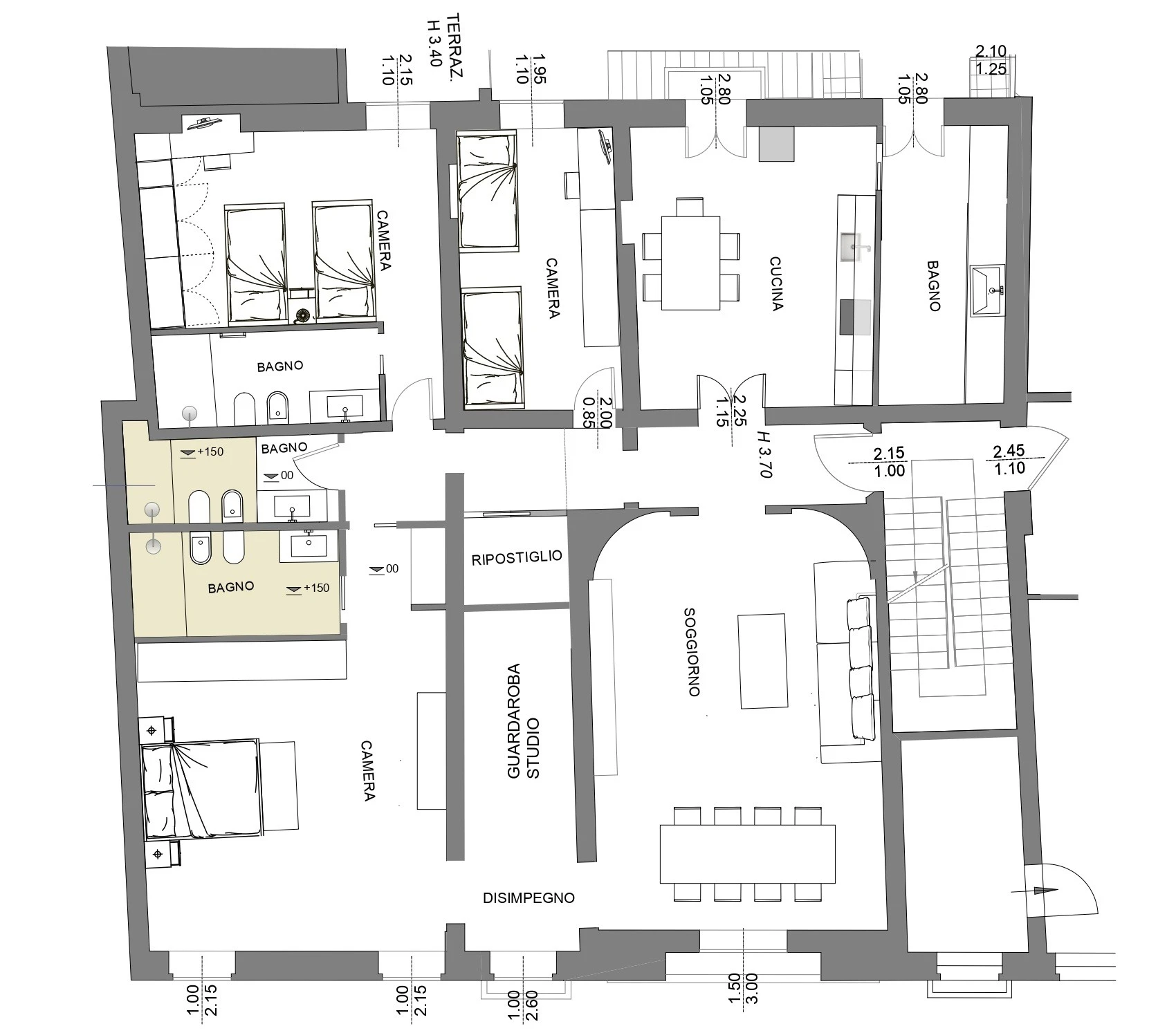
Padova_Affittasi elegante appartamento di circa 170 mq, situato al secondo piano, completamente ristrutturato nel 2025 con finiture di pregio e spazi generosi. 

L’immobile si compone di: Ingresso, Ampio soggiorno luminoso, Cucina abitabile, Due camere matrimoniali entrambe con bagno privato, Una camera singola, Due bagni aggiuntivi, Zona guardaroba, Ripostiglio, terrazzino e due poggioli e a concludere comodo posto auto. 

Caratteristiche aggiuntive: Utenze autonome, Nessuna spesa condominiale. 

DISPONIBILE DA MARZO 2026 

Riferimento: AA G 3025.

Richiesti: € 2.500 

 

Info e visite contattando lo Studio Ruzza 

 

La nostra azienda, con i suoi collaboratori, si pone con serietà e competenza sul mercato cittadino da oltre vent'anni occupandosi di intermediazione e consulenza rivolte ai settori: immobiliare residenziale-commerciale, attività commerciali e pubblici esercizi. 

 

Il nostro obiettivo è la soddisfazione del cliente, oggetto della nostra cura avrà a disposizione servizi e competenze secondo i più alti standard qualitativi in ogni fase del rapporto e della trattativa. 

Caratteristiche

Principale
arrows_output
Dimensione
170
calendar_check
Libero
MARZO 2026
Caratteristiche
night_shelter
Camere da letto
3
bathtub
Bagni
3
stairs_2
Totale piani edificio
2
elevator
Ascensore
No
mode_heat
Riscaldamento
Autonomo
laptop_car
Posti auto
1
calendar_view_day
Piano
2
nest_multi_room
Altre stanze
SI
kitchen
Cucina
Abitabile
dine_lamp
Arredamento
No
blinds_closed
Infissi esterni
Vetro singolo Legno
room_preferences
Porta blindata
Si
imagesmode
Affaccio
Interno e Esterno

Classe energetica

G
> 3,50 kWh/m²

Mappa

Richiedi informazioni

Contattaci per avere più informazioni riguardo l'immobile

print STAMPA ANNUNCIO

Altri annunci simili