AV 1008

location_on Via Del Risorgimento, Padova

vendita
€ 210.000

Descrizione

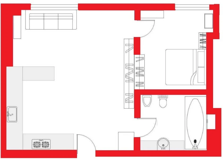
Padova_Centro Storico vendesi bilocale di ca. 50 mq con splendida vista sulla cappella degli Scrovegni completamente arredato posto al piano alto, composto da ingresso, soggiorno-cottura, camera matrimoniale e servizi. Zona centralissima a due passi da tutti principali servizi, aria condizionata, lavatrice. Ideale anche come investimento data la posizione strategica.

 

Richiesti € 210.000.

 

Per info e visite contattare lo StudioRuzza. 
 

Caratteristiche

Principale
arrows_output
Dimensione
50
euro
Spese condominiali
150 €/mese
calendar_check
Libero
SI
Caratteristiche
energy_savings_leaf
Ipe
242,20
night_shelter
Camere da letto
1
bathtub
Bagni
1
stairs_2
Totale piani edificio
13
elevator
Ascensore
Si
mode_heat
Riscaldamento
Centralizzato
laptop_car
Posti auto
0
garage
Garage
0
calendar_view_day
Piano
12
nest_multi_room
Altre stanze
Soggiorno
kitchen
Cucina
Angolo Cottura
dine_lamp
Arredamento
Si
grass
Giardino
no
balcony
Balcone
no
pip_exit
Terrazzo
no
roller_shades_closed
Cantina
no
concierge
Servizio portineria
Si
room_preferences
Porta blindata
Si

Classe energetica

G
> 3,50 kWh/m²

Mappa

Richiedi informazioni

Contattaci per avere più informazioni riguardo l'immobile

print STAMPA ANNUNCIO

Altri annunci simili