Rif. NA 0245

Affittasi ampio Negozio con Canna Fumaria

location_on Cavalcavia Chiesanuova

affitto
€ 1.800 /mese

Descrizione

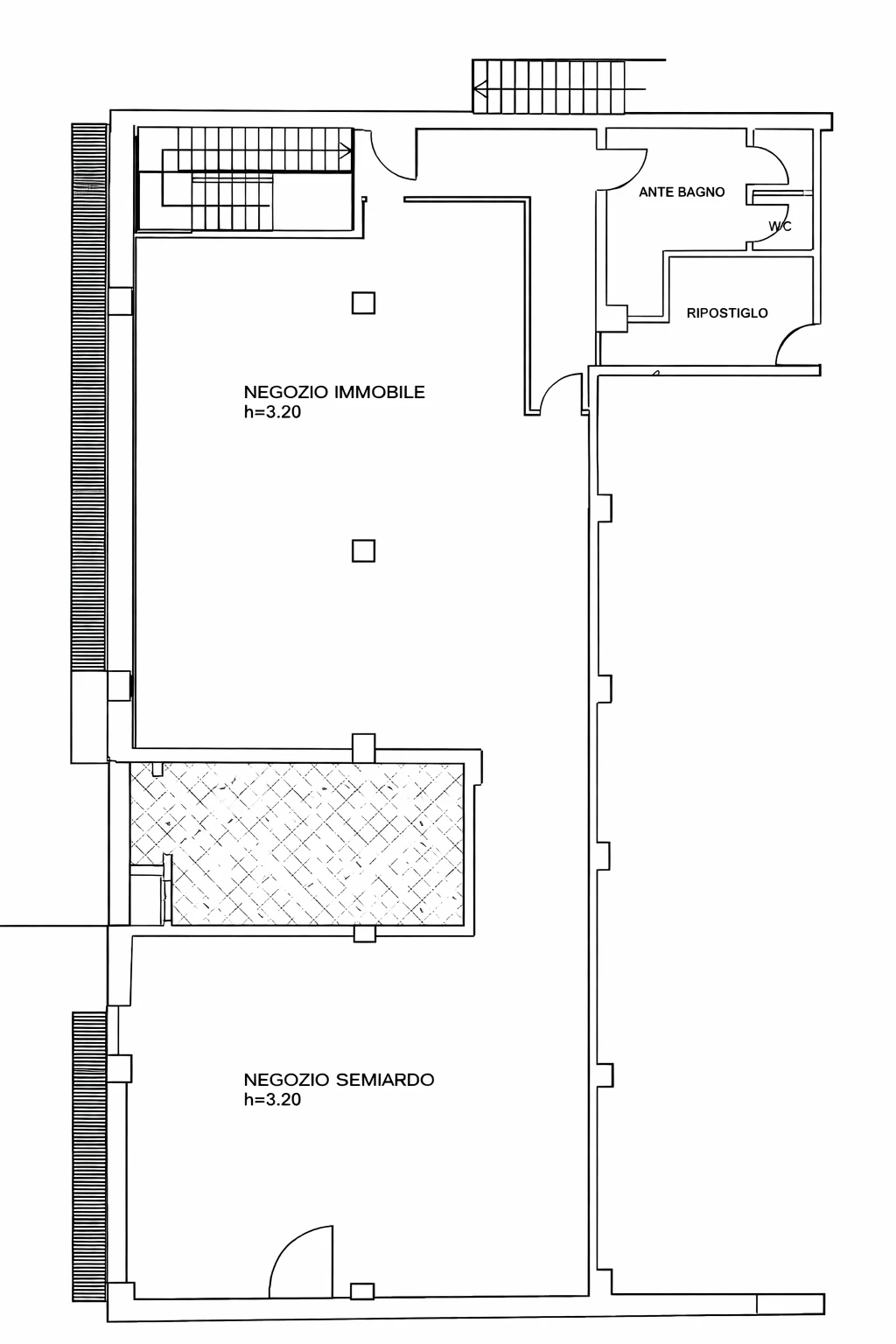
Proponiamo in locazione ampio negozio con 4 vetrine su strada, ideale per attività commerciali che necessitano di forte visibilità e spazi generosi.

L’immobile si sviluppa su due livelli:

Piano terra di circa 180 mq, composto da un ampio vano open space facilmente personalizzabile, ripostiglio e doppi servizi.

Piano interrato di circa 150 mq, collegato internamente, composto da un grande vano ad uso magazzino, perfetto per stoccaggio merci o deposito.

Il negozio è dotato di canna fumaria, caratteristica che lo rende particolarmente adatto anche ad attività di ristorazione o food.
Presenta inoltre comodo accesso per carico/scarico merci e dispone di 2 posti auto riservati.

Utenze autonome.

Canone di locazione: € 1.800/mese
Spese condominiali: € 150/mese

Caratteristiche

Principale
arrows_output
Dimensione
330
euro
Spese condominiali
150 €/mese
calendar_check
Libero
01/05/2026
euro
Cauzione
5400
Caratteristiche
bathtub
Bagni
2
mode_heat
Riscaldamento
Autonomo
laptop_car
Posti auto
2
calendar_view_day
Piano
Terra
local_convenience_store
Vetrine su strada
3
cabin
Canna fumaria
SI

Mappa

Richiedi informazioni

Contattaci per avere più informazioni riguardo l'immobile

print STAMPA ANNUNCIO

Altri annunci simili