Rif. UA 0015

Affittasi Ufficio Centralissimo

location_on Via Trieste

affitto
€ 1.750 /mese

Descrizione

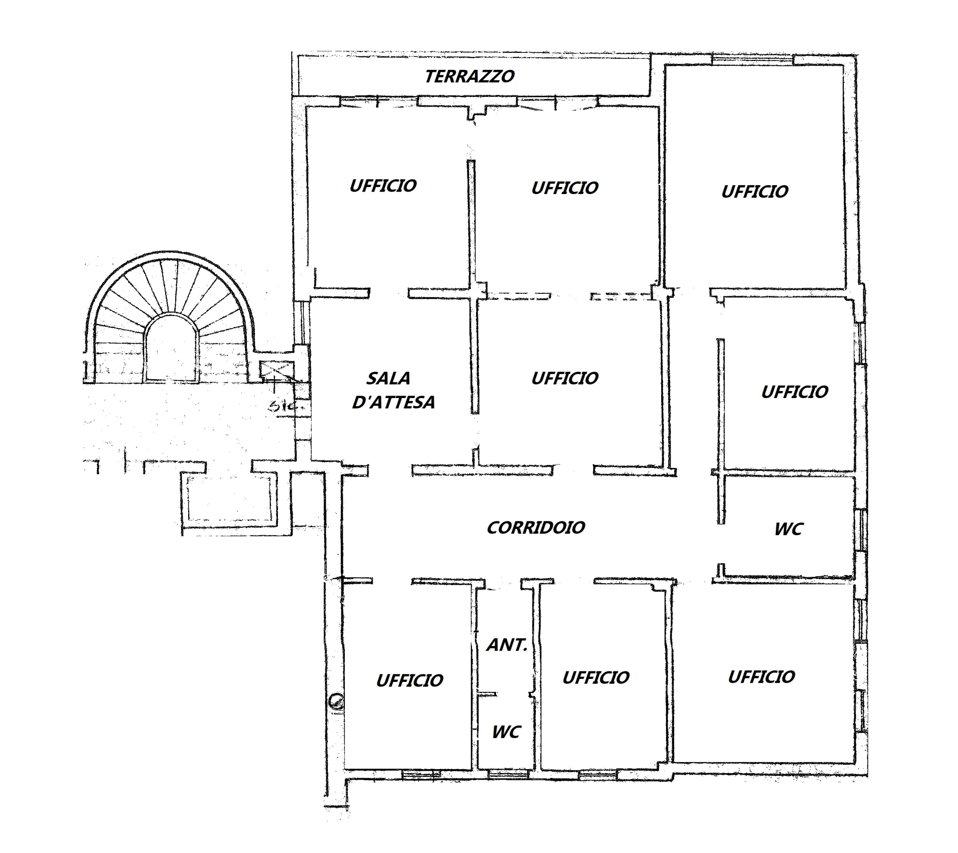
Ufficio affittasi nelle immediate vicinanze del Centro Storico e comodo alla stazione, 200 mq terzo piano servito da ascensore, composto da ingresso/sala d'attesa, 7 vani ad uso ufficio, corridoio ad uso archivio e doppi servizi. Ufficio in ottime condizioni, bagni ristrutturati e infissi con vetrocamera.
Riscaldamento centralizzato, spese condominiali ca. 250 €/mese.


Richiesti € 1.750 mensili

 

Info e visite contattando StudioRuzza 049 666077

La nostra azienda, con i suoi collaboratori, si pone con serietà e competenza sul mercato cittadino da oltre vent'anni occupandosi di intermediazione e consulenza rivolte ai settori: immobiliare residenziale-commerciale, attività commerciali e pubblici esercizi.

Il nostro obiettivo è la soddisfazione del cliente, oggetto della nostra cura avrà a disposizione servizi e competenze secondo i più alti standard qualitativi in ogni fase del rapporto e della trattativa.

Caratteristiche

Principale
arrows_output
Dimensione
200
euro
Spese condominiali
250 €/mese
calendar_check
Libero
01/06/2026
Caratteristiche
energy_savings_leaf
Ipe
134,15
bathtub
Bagni
2
elevator
Ascensore
SI
mode_heat
Riscaldamento
Centralizzato
calendar_view_day
Piano
3
room_preferences
Porta blindata
Si
exit_to_app
Uscita emergenza
Si
e911_emergency
Luci di emergenza
Si

Classe energetica

F
> 2,60 e ≤ 3,50 kWh/m²

Mappa

Richiedi informazioni

Contattaci per avere più informazioni riguardo l'immobile

print STAMPA ANNUNCIO

Altri annunci simili