Rif. UV 0024

Ufficio Zona Tribunale

location_on Via Enrico degli Scrovegni

vendita
€ 280.000

Descrizione

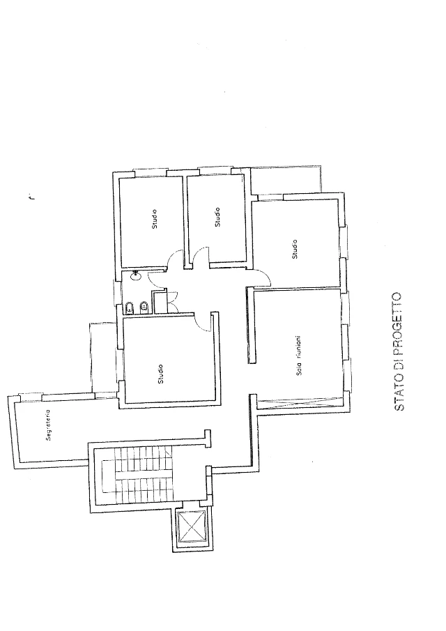
Padova_Zona Tribunale/Fiera vendesi ampio ufficio in ottime condizioni di ca. 170 mq posto al 3° piano servito di ascensore e così composto: ingresso, 4 ampi vani ad uso ufficio di cui 2 con terrazzino, ampia e luminosa sala riunione, ripostiglio, bagno finestrato e a concludere comoda soffitta e cantina di ca. 30 mq.
Riscaldamento centralizzato.

Richiesti € 280.000

 

Info e visite contattando StudioRuzza 049 666077

La nostra azienda, con i suoi collaboratori, si pone con serietà e competenza sul mercato cittadino da oltre vent'anni occupandosi di intermediazione e consulenza rivolte ai settori: immobiliare residenziale-commerciale, attività commerciali e pubblici esercizi.

Il nostro obiettivo è la soddisfazione del cliente, oggetto della nostra cura avrà a disposizione servizi e competenze secondo i più alti standard qualitativi in ogni fase del rapporto e della trattativa.

Caratteristiche

Principale
arrows_output
Dimensione
167
calendar_check
Libero
SI
Caratteristiche
energy_savings_leaf
Ipe
182,38
bathtub
Bagni
1
elevator
Ascensore
SI
mode_heat
Riscaldamento
Centralizzato
calendar_view_day
Piano
3
room_preferences
Porta blindata
SI
blinds_closed
Infissi esterni
Doppio vetro pvc

Classe energetica

F
> 2,60 e ≤ 3,50 kWh/m²

Mappa

Richiedi informazioni

Contattaci per avere più informazioni riguardo l'immobile

print STAMPA ANNUNCIO

Altri annunci simili